
Previously on scuzzblog: Amiga XCAD - Computer Aided Design.
December 26th 2601: scuzzblog: Mick Roots - Unsung hero of the A1500 by A1500 Ltd Part 2.
December 25th 2501: scuzzblog: Mick Roots - Unsung hero of the A1500 by A1500 Ltd Part 1.
ScuzzBlog: Diaries March 2024
Entry 11th March 2024: Post 1: CAD check - A1500 Expansion System.
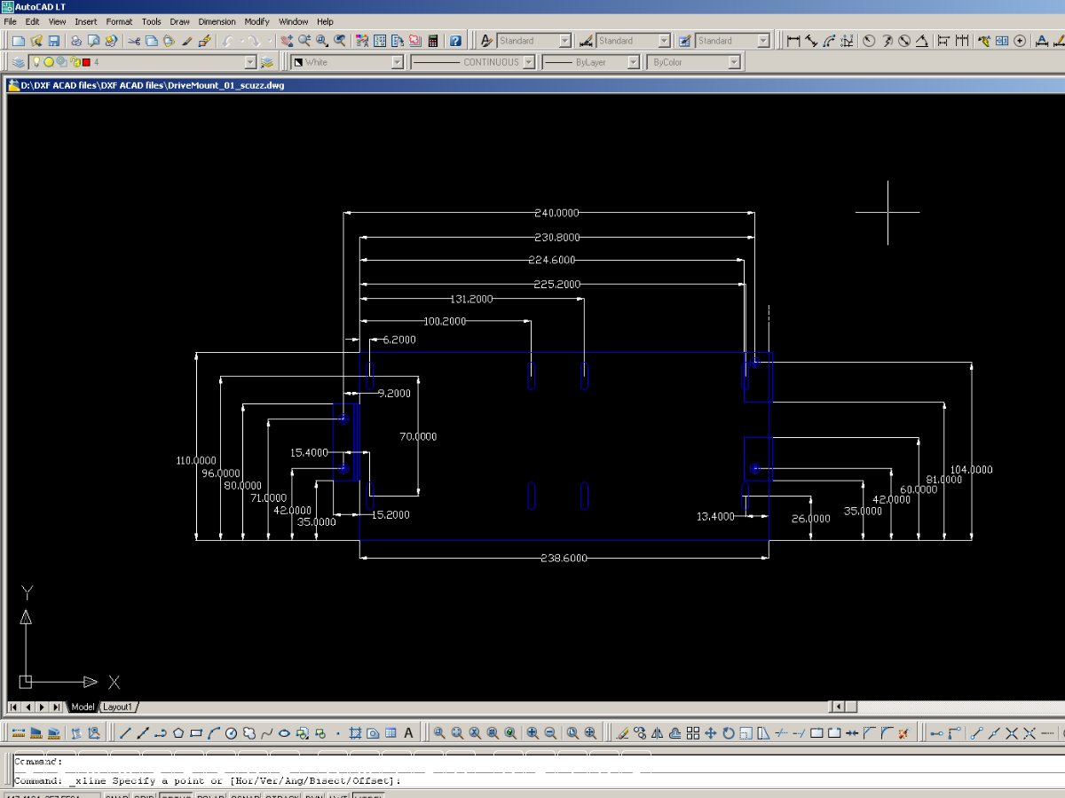
CAD check - A1500 Expansion System.
OK we are back to the A1500 Expansion System which if you recall
an earlier blog was the originating design for the later Checkmate.
Mick Roots was the guy who produced the design drawings and he has
forwarded a few on to me so I can check a number of key dimensions.
Mick was keen to establish the Drive Saddle Version and to do this
I needed to measure a number of fixing screw locations.
The original drawings would have been produced in XCAD. I do feature
XCAD in a couple of my blogs. However, for the purposes of this
exercise I have called on the services of my Evesham laptop and the
very wonderful AutoCAD Lite 2006.
All the software on the laptop plus the laptop was purchased for
me by the practice so that I could work at home during holidays.
In 2006 I managed to clock up a whole year at work without a single
holiday. The practice chose to buy me a laptop rather than pay me
the money. Their argument was that I just loved computers.
Consequently I still have the rights to my AutoCAD software and
all that is on the laptop. Suffice to say these days I do not
spend very much time drawing buildings.
To undertake this exercise I needed to drag out the A1500 computer
and this I will show tomorrow and confirm those critical dimensions.
The measuring tool I use is what we architects technically refer
to as a 'stick'. When surveying you needed a rigid measure so you
could have your other hand free to write stuff down. Came in very
useful as I needed my other hand for the lamp I use to light the
subject matter.
CAD check - A1500 Expansion System.
~ XCAD Software ~
~ A1500 Expansion System ~
~ December 25th 2023 ~

If you can only see this CONTENT window
then click the image above for the full site
Last updated 11th March 2024
Chandraise Kingdom
Keep the Faith
scuzzscink 2024